Platdak Stavanger type L, samenstelling 3, onbehandeld — Tuinenlifestyle Skip to content

Specificatie: geschaafd, gedroogd douglas
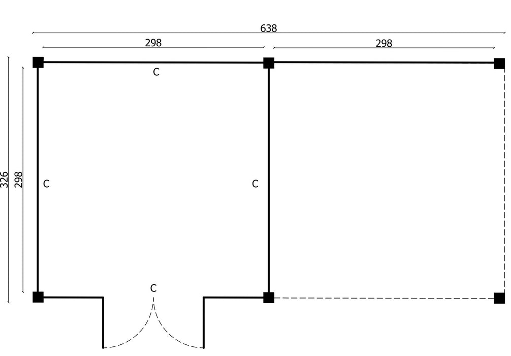
Doorloophoogte: 224,0 cm
Nokhoogte: 245,0 cm
Sporen: 4,5 x 14,0 (L), 6,5 x 14,0 (XL)
Ringbalk: 14,0 x 14,0 cm
Staanders: 14,0 x 14,0 cm
Dakbedekking inbegrepen: EPDM
Inbegrepen: stadsuitloop (vierkant), daktrim
aluminium
zwart, montagehandleiding,
bevestigingsmaterialen
Niet inbegrepen: wanden, deuren

Er zijn meer opties mogelijk:
Betonpoeren, wanden, hekwerken, deuren en ramen.
Vraag vrijblijvend naar de mogelijkheden en ontvang een voorstel op maat. Maak vandaag nog jouw tuinhuis werkelijkheid.

Platdak Stavanger type L, samenstelling 3, onbehandeld

SKU P171916
Original price €6.208,99 - Original price €6.208,99
Original price
Prijs: €6.208,99
€6.208,99 - €6.208,99
Per stuk Prijs: €6.208,99